物件詳細情報


住宅
No.477 本町 まちなかに残る、車庫付きの細長い町家
価格:2,500,000円 (税込)
面積:120.85㎡(建物)
所在地:
射水市本町3丁目6番10号
交通:
駅:0.7km
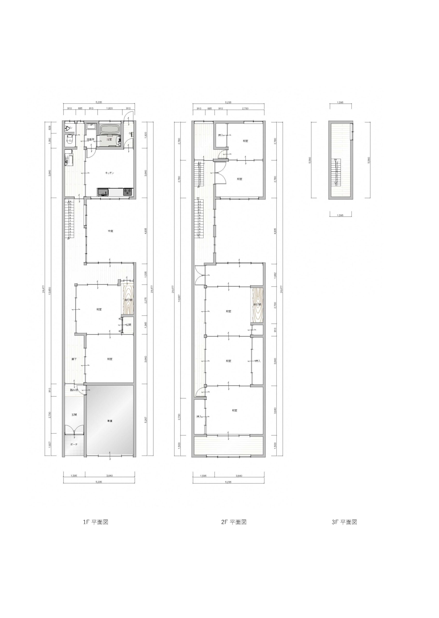
本町の通りに位置する奥へと伸びる町家型の住宅です。
1階は居間や台所、水回りに加え複数の和室が連なり、2階にも居室が配置された構成。
細長い敷地形状を活かした昔ながらの住まいのつくりが残っています。
車庫や物置、庭も備わっており暮らしの機能は一通り揃っています。
現在は一定期間利用されていないため補修は必要ですが、既存の構成を活かしながら住まいとして整えるあるいは用途を再編集する余地のある一棟です。
まちなかの利便性と、町家らしい奥行きのある空間をあわせ持つ物件です。
登録No.
477
分類
建物
売買
2,500,000円
建築年
築62年
所在地
射水市本町3丁目6番10号
面積
建物:120.85㎡
土地:142.14㎡
間取り
7DK
建物構造
木造2階建
補修の
多少の補修必要
補修の
入居者負担
利用状況
約7年前から放置
設備
電気:引込み済み
ガス:その他
風呂:ガス
水道:上水道
下水:下水道
トイレ:水洗
駐車場:有
物置:有
庭:有
主要施設
駅:0.7km
市役所:0.6km
病院:2.8km
消防署:0.6km
警察署:0.5km
保育園:1.5km
小学校:0.6km
中学校:1.0km
スーパー:1.7km
備考
現状有姿での売却
残置物あり(※一部撤去予定)
助成金に
(条件あり)
仲介
宅地建物取引業者媒介物件








