物件詳細情報


住宅
No.523 玄関の先は海 庄西町シーサイドハウス
価格:1,500,000円 (税込)
面積:119.24㎡(建物)
所在地:
射水市庄西町1丁目2-28
交通:
バス停:0.1 Km
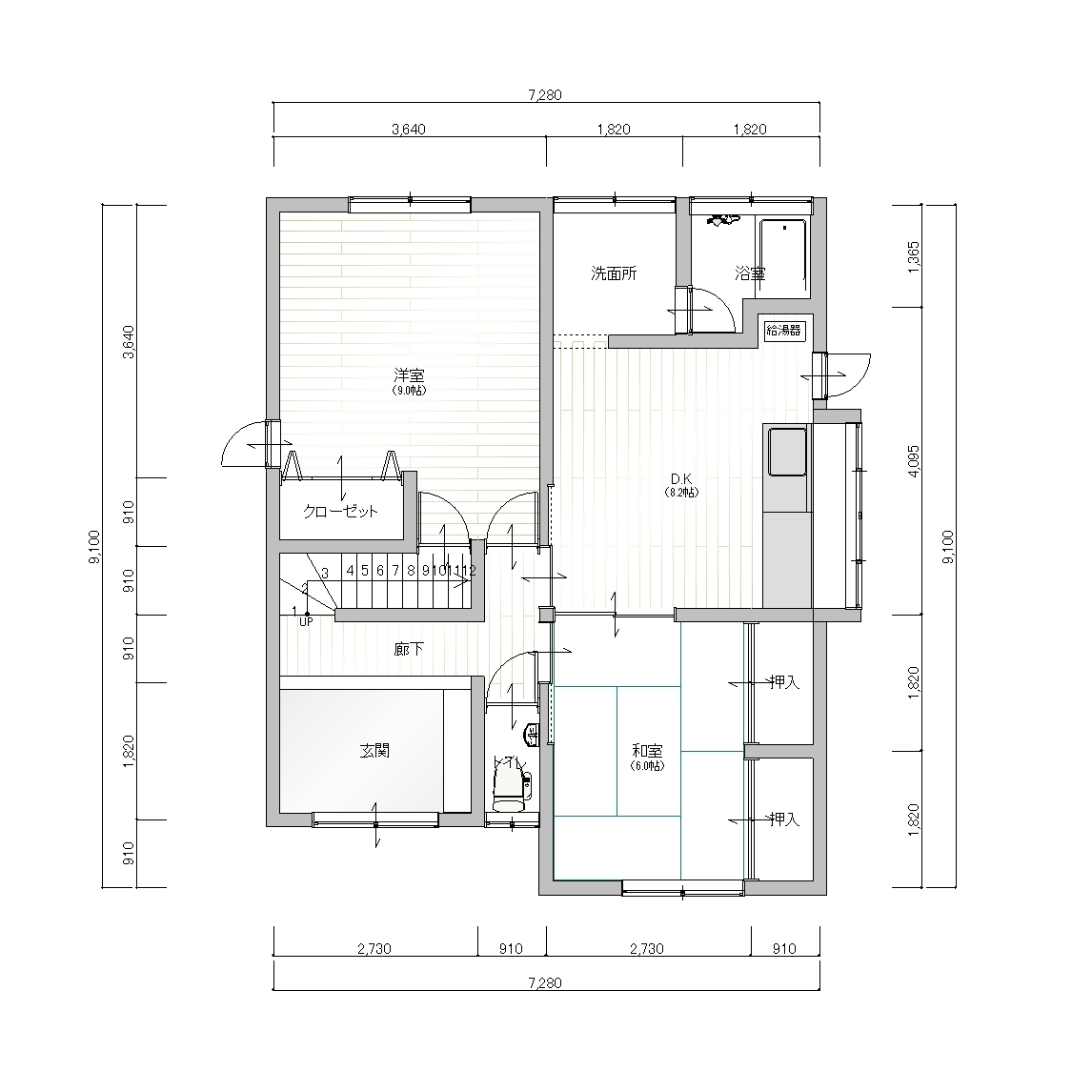
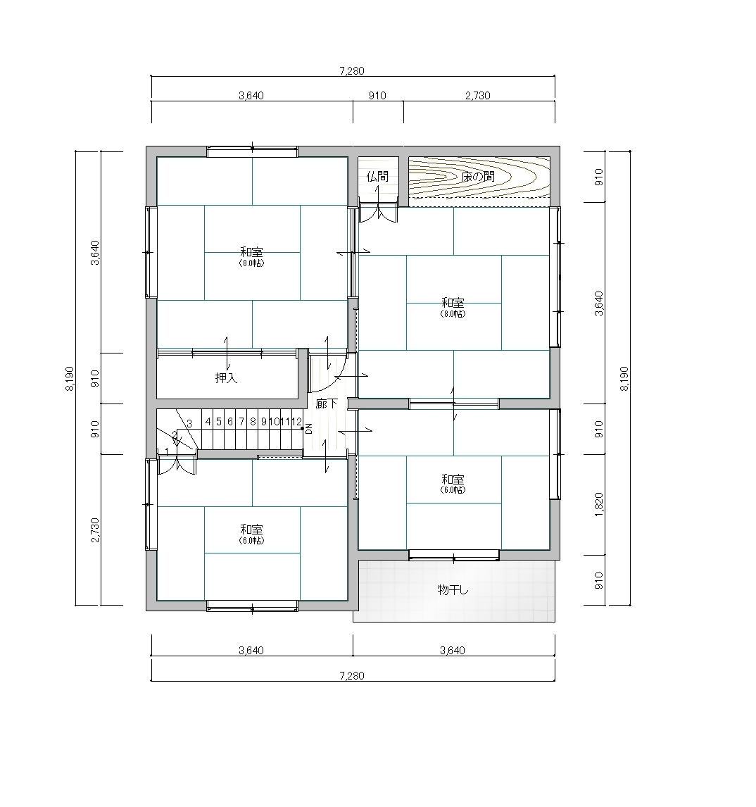
庄西町1丁目、家のすぐ前に海が広がる特別なロケーションに建つ6DK住宅です。
潮風を感じながら過ごす毎日は、射水の中でもなかなか味わえない魅力。
和室中心の間取りで部屋数も多く、ゆとりある暮らしが叶います。
築年数は経っていますが、その分、住む人の工夫で住まいを育てていける住居です。
海のある日常に惹かれる方に、ぜひご覧いただきたい物件です。
登録No.
523
分類
建物
売買
1,500,000円
建築年
築49年
所在地
射水市庄西町1丁目2-28
面積
建物:119.24㎡
土地:139.34㎡
間取り
6DK
建物構造
木造2階建
補修の
多少の補修必要
補修の
入居者負担
利用状況
令和7年3月から放置
設備
電気:引込み済み
ガス:プロパンガス
風呂:ガス
水道:上水道
下水:下水道
トイレ:水洗・洋式
駐車場:有
物置:無
庭:無
主要施設
バス停:0.1 Km
備考
残置物は売主負担にて撤去
助成金に
(条件あり)
–
仲介
宅地建物取引業者媒介物件









