No.533 タイトな間口に「広さ」を隠し持った、迷宮系コンパクト町家

物件詳細情報

住宅

No.533 タイトな間口に「広さ」を隠し持った、迷宮系コンパクト町家

価格:1,500,000円 (税込)
賃貸:3万円/月
面積:70.01(建物)

所在地:

射水市中央町165番地3

交通:

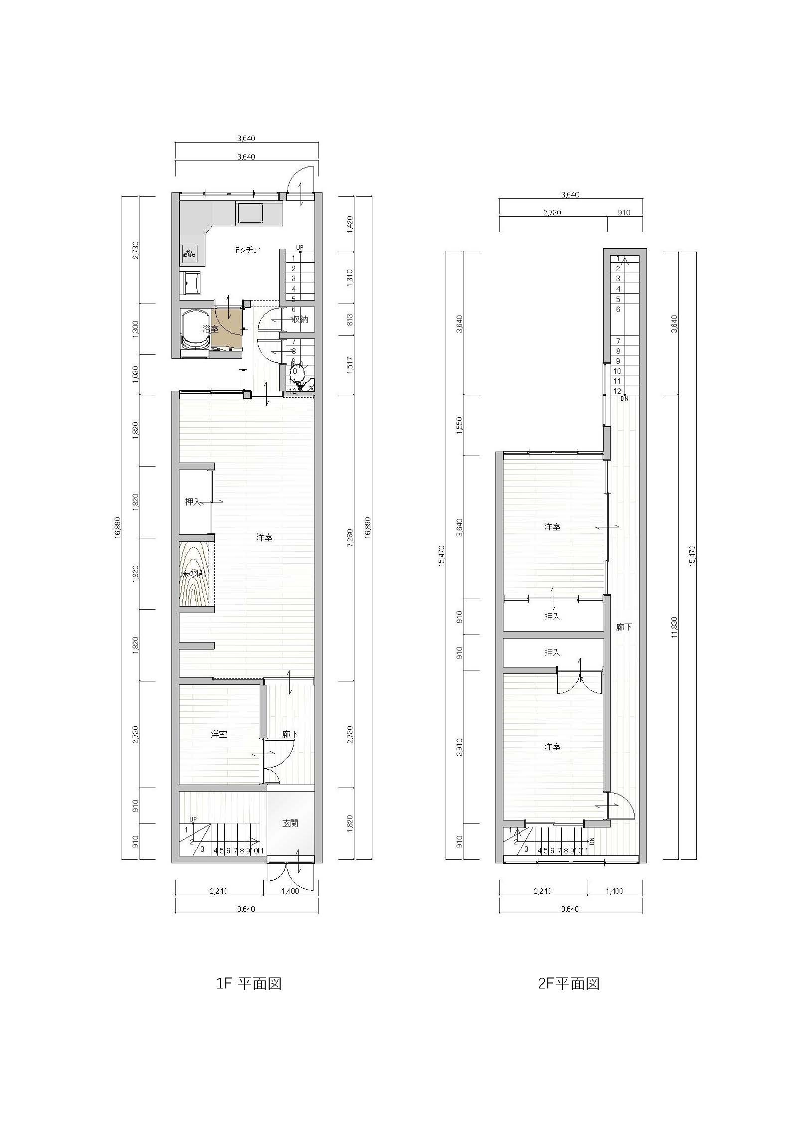
射水市中央町の通りに、シュッと馴染むスリムな外観。しかし扉を開けると、そのコンパクトな第一印象は心地よく裏切られます。

最大の特徴は、空間の奥へと視線が抜ける広い洋室と、上下階を繋ぐ「2つの階段」です。外観からは想像もつかない奥行きとプランはまるで「からくり箱」のような面白さを秘めています。

この独特の空間構成は、暮らしのオンとオフを分ける動線として活かせます。1階の大空間を仕事場やアトリエとして大胆に使いつつ、玄関側の階段を「パブリック」、奥の階段を「プライベート」な裏動線として使い分けるなど、複数のルートがあるからこそ生まれる余白を楽しめます。

築47年を迎え、外壁のクラックやトタンのサビなど、経年による補修が必要な箇所はあります。実際の生活に向けては、水回りの更新など現実的な手入れを前提とした計画が必要ですが、この外観と内部のギャップや、回遊性のある動線の面白さを自分らしく活かせる方に、ぜひ使いこなしていただきたい物件です。

登録No.

533

分類

建物

売買 (希望価格)

売買:1,500,000円
賃貸:3万円/月

建築年

築47年

所在地

射水市中央町165番地3

面積

建物:70.01㎡
土地:103.04㎡

間取り

4K

建物構造

木造2階建

補修の要否

補修の費用負担

利用状況

設備

電気:-
ガス:-
風呂:-
水道:-
下水道:-
トイレ:水洗
駐車スペース:無
物置:無
庭:有

主要施設への距離

備考

助成金に関する情報
(条件あり)

仲介

宅地建物取引業者媒介物件