物件詳細情報


住宅
No.475 射水市八幡町⑩
価格:2,000,000円 (税込)
賃貸:3.5万円/月
面積:119.82㎡(建物)
所在地:
射水市八幡町1丁目15-1
交通:
スーパー:1.7Km
射水市八幡町1丁目に位置し、病院や小中学校、駅が1km圏内に揃う生活利便性の高い立地です。
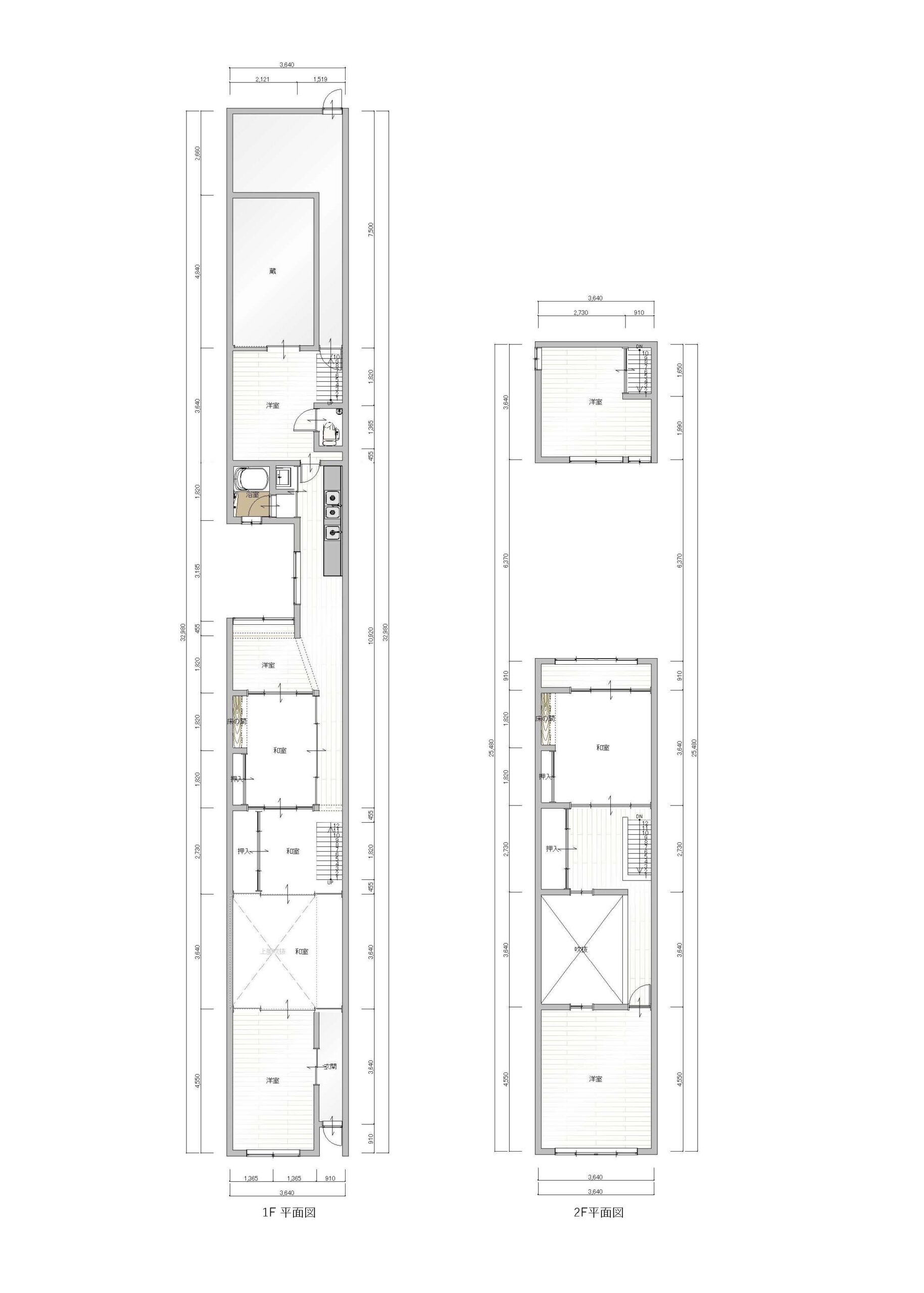
建物の最大の特徴は、その圧倒的な「長さ」にあります。間口の狭い外観からは想像もつきませんが、内部は約30m以上も奥へ奥へと空間が続く規格外の「超・うなぎの寝床」形状です。1階に7部屋、2階に3部屋の計10部屋の居室と、2箇所の倉庫が一直線に連なる特異な構成を持っています。この果てしなく続く空間は、手前をアトリエや土間、中央を居住区、最奥を静かな書斎にするなど、他に類を見ないダイナミックなゾーニングのキャンバスになります。
空き家期間が半年と短いため、長年放置された物件に比べると建物の傷みは比較的少ないと推測されます。敷地内に駐車場がないというハードルや多少の補修は必要ですが、売却(200万円)だけでなく月額3.5万円での「賃貸」も相談可能という、非常に柔軟な契約条件が魅力です。
この特異な奥行きを面白がり、住居兼プロジェクト拠点などとして使い倒したい挑戦者をお待ちしています。
登録No.
534
分類
土地・建物
売買
売買:2,000,000円
賃貸:3.5万円/月
建築年
–
所在地
射水市八幡町1丁目15-1
面積
建物:119.82㎡
土地:126.67㎡
間取り
10DK+倉庫
建物構造
木造2階建て
補修の
多少の補修必要
補修の
–
利用状況
放置(0.5年・半年)
設備
電気:引込み済み
ガス:プロパンガス
水道:上水道
下水道:下水道
風呂:灯油
トイレ:水洗
駐車スペース:無
物置:有(建物内に倉庫あり)
庭:有
主要施設
病院:0.35km
中学校:0.5km
小学校:0.7km
駅:0.75km
保育園:0.75km
市役所:1.5km
消防署:1.5km
警察署:1.5km
スーパー:1.7km
備考
・賃貸、売却 どちらも可。
助成金に
(条件あり)
仲介
宅地建物取引業者媒介物件








